Slide 1 Heading
Lorem ipsum dolor sit amet consectetur adipiscing elit dolor

Schüco ASS 50

Lorem Ipsum

Schüco ASS 50

Θερμοδιακοπτόμενο υψούμενο – συρόμενο κούφωμα, με συνολικό πλάτος όψης 112 mm με φύλλο 150kg, και με φύλλο 300kg και πλάτος όψης 124mm.

Μια ευέλικτη επιλογή με πολλές δυνατότητες διαμόρφωσης, όπως με διπλό, τριπλό ή και τετραπλό οδηγό και ράγα κύλισης από INOX.

ΣΗΜΕΙΟ ΥΠΕΡΟΧΗΣ

Design.

Δείκτης Στεγανότητας

Αντιδιαρρηκτική Προστασία

Ηχομόνωση

Διαθέσιμα Χρώματα

Δείκτης Αντοχής

ΥΑΛΟΠΙΝΑΚΕΣ

Διπλός

Ενεργειακός

TEXNIKA ΧΑΡΑΚΤΗΡΙΣΤΙΚΑ

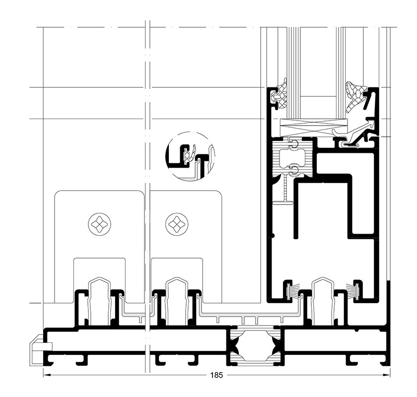
Διαστάσεις:

Βάθος προφίλ κάσας: 120 mm

Πλάτος όψης κάσας: 38 mm

Μέγιστο πάχος υάλωσης: 8-32 mm

Βάθος προφίλ φύλλου: 50 mm

Πλάτος όψης φύλλου: 84mm στα 150kg – 96mm στα 300kg

Χαρακτηριστικά-

Μηχανισμός: Εφαρμογή μηχανισμού 150 kg ή 300 kg με δυνατότητα σε υψούμενο 400kg

Λάστιχα στεγάνωσης από EPDM

Τα προφίλ έχουν ίσια μορφή

Λεπτή διατομή κάσας ως περιμετρικό πλαίσιο

Πολλές δυνατότητες διαμόρφωσης, κατ’ επιλογή με μονό, διπλό ή τριπλό οδηγό και ράγα κύλισης από inox

Ομάδες φόρτισης κατά DIN EN 12207/12208/12210

 

Προδιαγραφές-

Θερμομόνωση: Uw 2,0 W/ m2K για το ανασυρόμενο σύστημα

Ηχομόνωση  μέχρι Rw=40dB κατά DIN EN ISO 140-3

Αντιδιαρρηκτική προστασία μέχρι RC2 σύμφωνα με DIN V ENV 1627

Ανεμοδιαπερατότητα κατά DIN EN 12207 Κατηγορία: 4

Υδατοδιαπερατότητα κατά DIN EN 12208 Κατηγορία : 9A

Ανθεκτικότητα σε ανεμοπίεση κατά DIN EN 12210: Κατηγορία: C4 / B4

Μηχανική αντοχή κατά DIN EN 13115 Κατηγορία: 4

Λειτουργικότητα στο χρόνο κατά DIN EN 12400 Κατηγορία: 2

ΧΡΩΜΑΤΟΛΟΓΙΟ